一、工程概况
唐山三友碱厂是我国工业用碱主要生产基地。厂房结构因长期处于具有化学侵蚀性的环境中受到严重腐蚀,部分梁、柱外围混凝土疏松剥落,钢筋严重锈蚀,需要进行加固改造。
二、加固方案
根据现场观测到的情况及以上的分析,本工程的部分梁、柱的混凝土及钢筋受腐蚀目前已达到较严重的程度,必须尽快进行加固,以确保结构的安全。加固方案如下。
1、钢筋加固
1)除去疏松起壳的混凝土保护层;
2)用钢丝刷清除铁锈,直到把钢筋的部分表面有刷亮的刷痕,再用压力水冲洗干净;
3)在钢筋的表面涂一层复合水泥浆或环氧树脂胶做表面处理;
4)对于锈蚀情况较为严重的部位,应采取补强措施。补强措施为增焊钢筋或粘贴碳纤维等。
2、梁体加固
针对梁体混凝土中的钢筋发生锈蚀,钢筋截面减小,结构的承载力下降的的情况,采用粘钢进行加固。加固时,将钢板采用高性能的环氧类粘接剂粘结于混凝土构件的表面,钢板与混凝土形成统一的整体,利用钢板良好的抗拉强度达到增强构件承载能力及刚度的目的。
为合理选择粘钢方式,提高加固经济效益,采用静载试验梁的方式进行粘钢效果测试,测试试验梁长6m,矩形截面,高0.6m,宽0.3m,试验荷载下,梁体挠度对比如下图所示。
试验荷载下梁体挠度
由静载试验可知,粘钢后梁体刚度显著提高,经济效益明显。梁粘钢设计图如下所示。
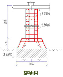
3、柱体加固
经现场检测及鉴定,厂房立柱根部腐蚀严重,多处保护层脱落,针对上述情况,经过对柱的加固方法比较,采用扩大截面加固法,新增纵筋直接锚固在底部截面扩大区,柱单侧增加厚度50mm。加固方法见右图所示。加固的同时,采用同样的方法增加地梁截面积,提高受损基础承载能力,满足结构安全使用要求。同时,为了提高混凝土密实度,增强混凝土的防腐效果,加固混凝土采用微膨胀细石混凝土。
三、防腐处理
1、基层处理
基层表面必须洁净,防腐蚀处理施工前,将砼基层表面的浮灰、水泥渣、疏松部位清理干净;被污染的表面用丙酮清洗干净。
2、防腐施工
防腐施工按现行国家规范要求进行施工,对进场原材料种类、规格逐一核对,同时检查出厂日期、合格证及出厂检验报告等。还要对其进行抽检、复验,如环氧树脂、环氧自流平漆等,并按规定比例进行小面积试验。
3、验收管理
基层处理、每层防腐层在下一道工序施工前严格按规定进行检查,不合格的经修补或返工修理合格后方可进行下一道工序。
四、加固总结
唐山三友碱厂经加固处理后,在近十年的使用中,混凝土梁柱未发现严重腐蚀现象,纯碱生产建筑物的腐蚀得到了有效地控制,能够保证建筑物结构的安全和生产的稳定运行。对处在高湿、母液、氨等介质侵蚀严重的部位,加固施工中,在砼中加入钢筋缓蚀剂,起到了良好的抗腐蚀效果。
粘钢加固时,对钢板防腐处理显得尤为重要,一旦钢板防腐处理不好,将为未来的安全生产埋下隐患。施工时,严格按照《建筑防腐蚀工程施工及验收规范》进行施工,保证了钢板的抗腐蚀性能。
